Werkstatt mit 4 Doppelgaragen Preis auf Anfrage1000 QM Grund | zusätzlich 600 QM (Hang) Gesamtgrundstücksgröße ca. 1600 QMKäuferprovision 2,38 % inkl. MwSt.
Ideal für einen Kapitalanleger, eine Hobbywerkstatt oder zum Bau für ein Ein(Zwei)Haus mit Parkmöglichkeiten
Zusätzliches Bauland lässt viele Möglichkeiten zu
Perfekt für einen Autosammler, Restaurator oder eine Hobbywerkstatt
LAGE:
Das Objekt befindet sich in einer ruhigen Lage in Salzweg. Luftlinie bis zu B12 sind es ca. 200 Meter. Jedoch ist die Ausfahrt zur B12 mit einer Schranke durch die Gemeinde Salzweg gesperrt. Sprich die Einfahrt ist über das Siedlungsgebiet. Daneben ist ein Wald, laut dem Verkäufer wäre der Besitzer vom Wald nicht abgeneigt hier etwas zu verkaufen.
Was hat Salzweg zu bieten?
In erster Linie ist Salzweg nur 5 KM von Passau entfernt und bietet somit die komplette Nähe zu Passau.
Viele Lebensmittel,- und Drogeriemärkte | Bäckereien | Banken | Viele Ärzte sowie Apotheken | Restaurants | Kindergarten | Grundschule und eine Mittelschule | viele Wälder und Wanderwege | Fitness-Studio | Werkstätte | Sonstige Dienstleistungsunternehmen | Sport und Freizeitgestaltungen |
Durch die gute Anbindung an Passau (5 KM ) profitiert die Gemeinde Salzweg von allen Vorteilen der wunderschönen Stadt. Zusätzlich befindet sich Salzweg direkt an der B12 auch ausgehend Richtung Tschechien und zum Autobahnzubringer.
Ausstattung
· Ca 1600QM-Grundfläche, davon ca. 530 QM
geeignet zum Bebauen. (Hanglage)
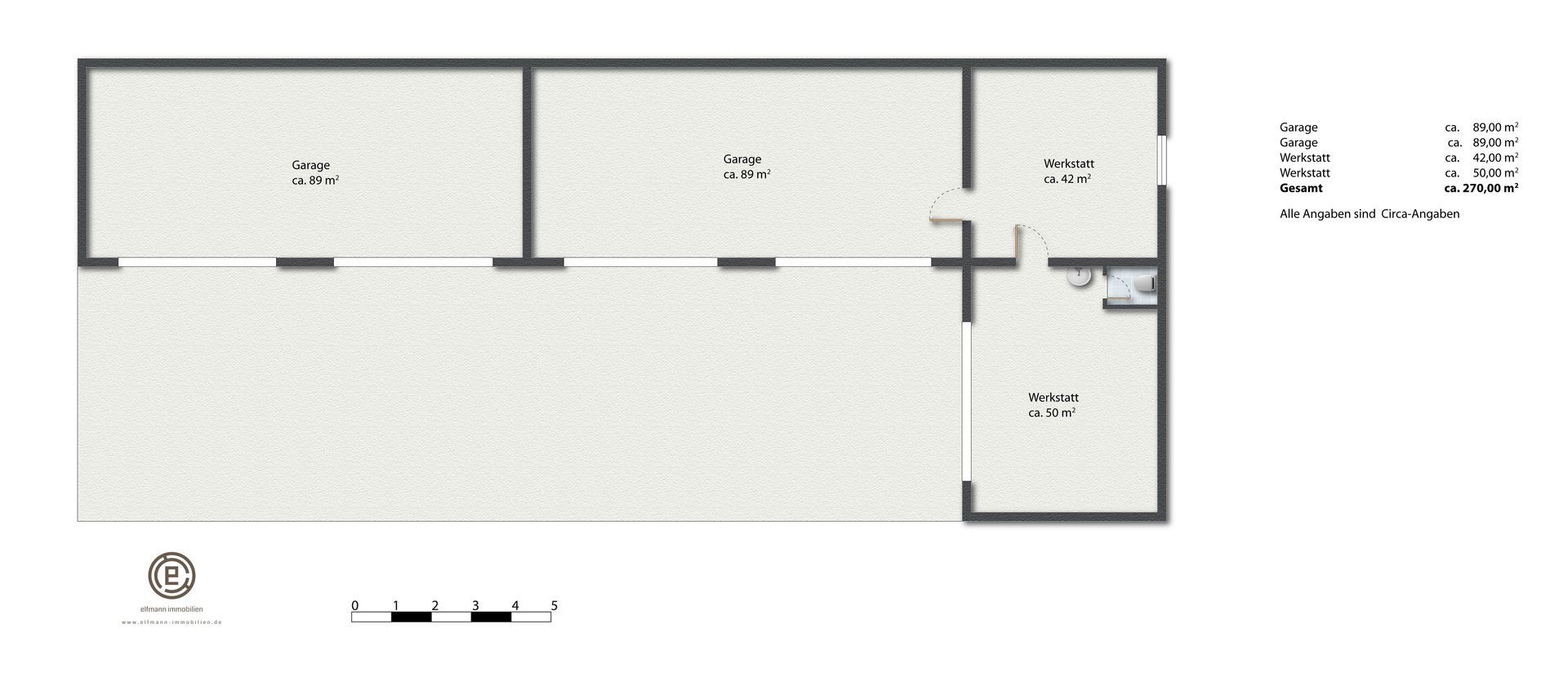
· Werkstatt mit 4 Doppelgaragen und einem Aufenthaltsraum.
· Gas-Heizung
· Umfriedetes Grundstück (Industriezaun)
· Ca. 265 QM-Nutzfläche zur Vermietung
· helle Räume
· komplette Werkstatt-Einrichtung kann abgelöst werden.
Objektnummer: S_GE_KAI
Bezugsfertig: 2024 (sofort)
Objekttyp: Werkstatt mit 4 Doppelgaragen und Bauland
Nutzfläche: ca. 265 qm
Grundstücksfläche: 1600 QM
G
Heizungsart: GAS
Energieausweis: wird bauftragt
Käuferprovision: Ja, 2,38 % inkl. MwSt.





